ついに我が家の未知の領域“床下”に足を踏み入れる時が来た・・・。
ゴォォォォォォ……
ここは、人類にとって最も身近でありながら、
ほとんどの者が足を踏み入れたことのない領域――
自宅の床下。
薄暗い空間には、無数の木材、パイプ、そして気配だけを残す小さな生命たちが息をひそめる。
ザッ…ザッ…ザッ…
匍匐前進で進む人影。
その手にはライトと図面、カメラ。
「hamakenはなぜ、この世界へと足を踏み入れたのか…」
家を建ててもうすぐ1年。気温も暖かくなり探査日和。
目に見えない部分の湿気、断熱、配管の状態。
すべてをこの目で確かめるため、
一人の男は、今…縁の下の冒険に挑む。
――これは、床下有人探索の記録である。
第一回 床下 有人探査
家づくりも完了し、家系記事はあまり書けなくなってきましたが、そういえばまだ書けることがありました。
以前、「床下探査に向けて」という記事を書いてからだいぶ時間が経ちましたが、ついに床下に潜入してきました。
潜入地点は、台所の一角にある点検口。

かなり分厚い断熱材が点検口に使われていますね。さすがアイ工務店
そして、床下点検口周辺に採用した床材は最高です。
ゴォォォォォォ……
開けた瞬間、室内とは違う、ひんやりとした空気が、地底の吐息のように立ち昇った。
持参した防塵服とヘッドライトを装着し、予備のライト、地図も準備ヨシ!hamakenは覚悟を決める。


平台車ヲ用意シテイルト移動がラクチン

まるで宇宙船のハッチを開けるかのように、重い蓋を押し開き、まずは足から未知の闇へと踏み入れた。
床下は、想像していた以上の「静寂」に包まれていた。
そこは外界の喧騒が一切届かない、完全に隔絶された地下迷宮。
探索者の行く手を阻むのは、基礎と土台の狭い隙間だけではない。
張り巡らされた無数の配管、そして断熱材の向こうに潜む、この家の真の健康状態。
最初のミッションは、「床下経路の確認」と「初期異変の発見」である。
hamakenは、用意した図面とカメラを手に、膝と肘を使い、一歩ずつ、慎重に前進を開始した。
彼のライトの光は、暗闇の中で唯一の希望であり、同時に、隠された現実を暴く鋭い刃でもあった。
奥に進むと何やら遺物を発見。

いつからここで眠っているのかは不明。
業者が基礎を掃き掃除していたホウキの残骸がそのままでした。

まるで行く手を阻むように広がるパイプたち。見えない所で静かに働いている我が家の水道インフラ。このまま、探査を続ける・・・。
調査結果
キッチンや脱衣場へ延びるパイプ周りが断熱材にやや隙間を発見。

とは言え、隙間はかなり小さい。影響は少ないでしょうが、今後塞ごうと思う。施工上、どうしてもパイプ周辺はしかたない。

ここはそこそこ大きな断熱材の隙間。これも今回の調査で発見したので今後のDIY埋める。

次は何か所も発見した断熱材の垂れ下がり。基礎の通気パッキンを塞いでいる。今後、重力と自重で垂れ下がるのが心配。また通気を塞いでいるのも気になるところ。分厚いグラスウールなので通気パッキンから入り込んだ空気が床下に流れ込むことは無いと思いたい。今回の調査で今後のDIYに役立てる。気密テープか何かで垂れ下がった断熱材を止めようかと。

床下点検口の周囲、僅かだが断熱材に隙間を発見。このくらいサイズなら適当に詰めて塞げそう。

こちら、LANケーブルが各部屋へ繋げるための空配管が床下につながっている箇所。かなりの隙間を発見。床の冷たさに直結する恐れがあるため、今後埋める。


浴室へ繋がる箇所には外気が流れ込まないように人通口に蓋がされている。ただ、周囲に隙間が見られたので今後塞ぎたい箇所。
第二回 床下 有人探査に向けて
探索者の行く手を阻む、基礎と土台の狭い隙間、張り巡らされた無数の配管。その暗闇の中で、hamakenの最初のミッション「床下経路の確認」と「初期異変の発見」は、一時中断を余儀なくされた。
しかし、これは撤退ではない。
装備と図面、カメラを手に、家屋の真の健康状態をこの目で確かめるという使命は継続している。
冷気を帯びた地底の吐息が誘う、未知の領域への再突入は避けられない運命だ。
【第二回床下有人探査】深淵への再突入は第一回調査の経験を踏まえ、hamakenは「縁の下の冒険」を再開する。次なる潜入は、単なる経路の再確認に留まらない。目に見えない湿気、断熱、配管の状態といった、この家の核心に迫るための、より緻密で深部への探査となる。外界の喧騒が一切届かない、完全に隔絶された地下迷宮にて、探索者は再び、膝と肘を使い、静寂の闇へと前進を開始する。
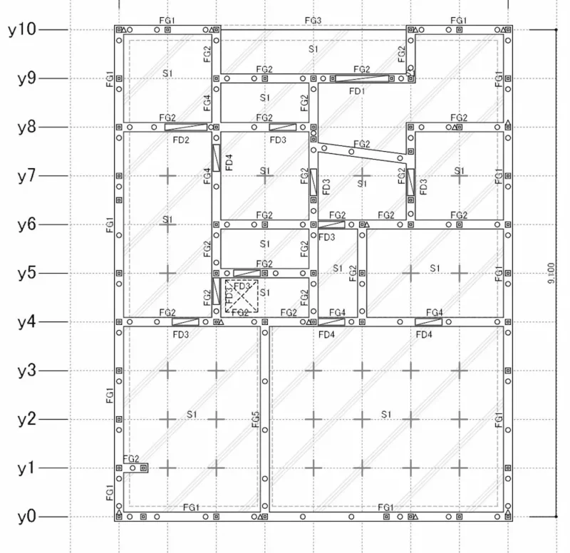
探索範囲を振り返る
今回の探索では我が家の床下すべてを回ることは不可能であった。
床下図面に今回の調査範囲を反映するとこのようになる。

探索は全体の3割以下。つまり、今回の探索はほんの一部に過ぎない。まだ調査は続く。
ただし、今回の探索は床下点検口の周囲しかできなかったが、ここが最もパイプが密集するエリア。今後待ち受ける探索エリアにはパイプは存在しないはずだ。

今後の探索ルートを黒矢印で示してみた。
まだまだ未知の領域へ、踏み入れることになる
ゴォォォォォォォォォォ……






コメント